Licitație
Distribuie

Comision 0%.1/2 Duplex. Giroc. Pozitie excelenta. Compartimentare ideala. Finisaje lux. Terasa mare.

PRET: 154.900 EUR
Vizualizări 2705
20.03.2026
Proprietar
PRET: 154.900 EUR -20.03.2026
Vizualizări 2705

Sumele Licitate
Vizualizări 2705
20.03.2026
Nu s-au găsit rezultate!

Chirii și Vânzări Imobiliare

Descriere

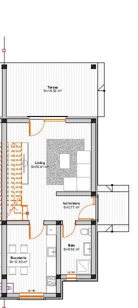
          Comision 0%.Detalii RELEVANTE oferta :- 1/2 duplex ,cu regim de inaltime Parter + Etaj- suprafata utila de 114 mp plus terasa de 19 mp.- teren de 320 mp, cu front stradal de 9 m.- detalii constructive : ziduri exterioare si interioare din caramida porotherm, termoizolata exterior, acoperis de tigla.- compartimentare:- parter : hol acces, baie, bucatarie, living, camara, terasa- etaj : hol , 3 dormitoare, baie.- detalii AMENAJARE interioara : parchet laminat , gresie, faianta, ferestre cu tamplarie PVC si geam termopan, usa PVC la intrare, usi interioare noi, vopsea lavabila, corpuri sanitare noi- CENTRALA termica PROPRIE cu incalzire prin pardosealaDetalii suplimentare : teren imprejmuit, poarta acces auto automata si poarta acces pietonal,Terasa este spatioasa- dispune de toate utilitatile (apa, gaz, canal, curent). Dispune de acces auto asfaltat, drumul fiind pietruit pe o portiune restransa.Detalii pret :Pretul solicitat  este de 153.500 Eur, negociabil.Se accepta si varianta de achizitionare prin intermediul unui credit bancar.Informatii Certificat Energetic:- Clasa energetica : ATel. 07 arata numarul

Vânzător

Alexandru Mioc

Proprietar

Pe site din ian. 2022

Preț: 154.900 EUR

Timiș, Giroc

Recenzii
0 Recenzii de afișat
 
Anunțuri similare
Licitație
Ad Thumbnail
De Vanzare
Apartament 2 camere - Baneasa - Terasa S...
Proprietar

- 17.03.2026

94.500 EUR
Vânzare Directa
Ad Thumbnail
De Inchiriat
Apartament de Lux de inchiriat in Atriun...
Proprietar

Iași - 17.03.2026

450 EUR
Vânzare Directa
Ad Thumbnail
De Vanzare
Vand Vila tip Triplex 4 Camere 2 Bai - D...
Proprietar

Bragadiru - 17.03.2026

75.000 EUR
Vânzare Directa
Ad Thumbnail
De Inchiriat
inchiriez in regim hotelier ultracentral...
Proprietar

- 17.03.2026

25 EUR
//
Promo