Vânzare Directa
Distribuie

Oportunitate! Apartament mare 2 camere Complexul Mic.

PRET: 45.000 EUR
Vizualizări 2295
30.11.2025
Proprietar
PRET: 45.000 EUR -30.11.2025
Vizualizări 2295

Chirii și Vânzări Imobiliare

Apartamente - Garsoniere de vânzare

2 camere

Descriere

Bun găsit!

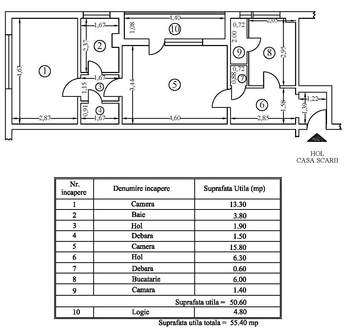
Într-o lume imobiliară plină de "noutăți", compartimentări "moderne" și locații "în plină dezvoltare", vă prezint, un apartament clasic pentru Ploiești. Un apartament cu împărțire, suprafață și locație exact așa cum trebuie să fie. În parcul “Cina” e liniște, umbră și miroase a vise plăcute! Dacă n-ai pâine cuptorul turcesc e la Nord. Pentru cei care poate vin din alt cartier sau chiar alt oraș, de menționat că Lidl, Penny, Profi sau Mega Image, n-are rost să discutăm, bani să fie, că ele sunt peste tot la 5 minute de mers pe jos. Daca mergi la școală sau liceu , mă rog “colegiu”, e acolo, tot la 5 minute.

Acum, pentru că ați cunoscut și înțeles pe îndelete locația, haideți să discutăm puțin și despre apartament. Vorbim despre un "clasic", un 2 camere semidecomandat înbunătățit. Cu debarale. Cu logie la sufragerie cât sufrageria. Cu o bucătărie mare, spațioasă, luminoasă, gândită pentru oameni care gătesc și mănâncă acasă. Și da, pentru genul care nu doar gătesc, dar pun și murături. Au și unde să le țina, că de aia are și debarale apartamentul. Apartamentul nu e lux. La interior, apartamentul nu are nici o îmbunatățire (doar vre-o doua termopane). Și deși poate părea un dezavantaj, faptul că el poate fi amenajat după bunul plac și nevoia fiecărei familii, poate reprezenta chiar un punct forte. O zugrăveală model 2000, asortată cu o pardoseală din lemn de fag cunoscută și sub denumirea de parchet (nu laminat din hârtie presată), în timp ce pe jos în bucătărie, baie și hol apartamentul a fost decorat cu o pardoseală rigidă obținută prin frecarea la umed a unui produs obținut din ciment și piatra de marmură. Mă rog, are mozaic clasic pe jos, pentru ăia care și știți ce e ăla terrazzo mozaic.

Și pentru că o să mă întrebați, haideți să clarificăm: de ce se vinde apartamentul? Ei bine, e moștenire. Și moștenitorul vrea să-l vândă și să bea banii. Este că nu vă așteptați la răspunsul ăsta?

Ar mai fi așa:

·        că situația juridică este certă, concretă, fără belele.

·        că cei mai grăbiți și mai puțin pretențioși, se pot muta, maxim cu curățenie generală, o zugrăveală, o rașchetare de parchet și să-și asume cumpărarea modelului de gresie și faianță conform ultimelor tendințe în domeniu pentru renovare baie și bucătărie.

·        că apartamentul e liber, că vă puteți apuca imediat de demolat în el,

·        că vine la pachet cu comision 0 cumpărător și că are cel mai mic preț/m² din piață

·        că are clasa energetică “B”, nivel emisii CO2 tot “B” și că are separație de gaz.

·        că printre atâtea "blocuri noi", ăsta e un bloc vechi (fără “Bulină” de nici o culore) și trainic (beton armat).

·        și bine poziționat (înconjurat de pomi) și cu toate cele "la botul calului".

·        și toate astea sunt un mare avantaj!

·        și că îl puteți viziona oricând vreți dumneavoastră

Acestea fiind spuse, eu vă recomand călduros acest apartament pentru că este atât de banal, normal și tipic pentru zonă, încât ar fi păcat să nu profitați de toate avantajele sale absolut normale și firești.

Oameni buni, acum puneți mâna pe telefon și sunați, să cumpărați!

Vânzător

Laurentiu

Proprietar

Pe site din ian. 2024

Preț: 45.000 EUR

Prahova, Ploiești

Recenzii
0 Recenzii de afișat
 
Anunțuri similare
Licitație
Ad Thumbnail
De Vanzare
Apartament 2 camere - Baneasa - Terasa S...
Proprietar

- 17.11.2025

94.500 EUR
Vânzare Directa
Ad Thumbnail
De Inchiriat
Apartament de Lux de inchiriat in Atriun...
Proprietar

Iași - 17.11.2025

450 EUR
Vânzare Directa
Ad Thumbnail
De Vanzare
Vand Vila tip Triplex 4 Camere 2 Bai - D...
Proprietar

Bragadiru - 17.11.2025

75.000 EUR
Vânzare Directa
Ad Thumbnail
De Inchiriat
inchiriez in regim hotelier ultracentral...
Proprietar

- 17.11.2025

25 EUR
Promo