Licitație
Distribuie

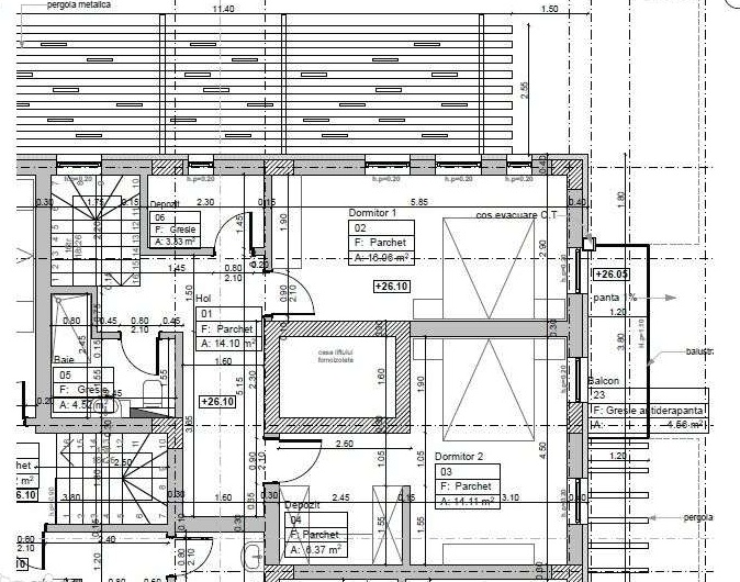
Duplex de vanzare in bloc nou, Avantgarden3 Brasov

PRET: 205.400 EUR
Vizualizări 4414
10.01.2026
Proprietar
PRET: 205.400 EUR -10.01.2026
Vizualizări 4414

Sumele Licitate
Vizualizări 4414
10.01.2026
Nu s-au găsit rezultate!

Chirii și Vânzări Imobiliare

Descriere

Nevoia de intimitate ne caracterizează pe fiecare. O familie cu copii va găsi aici căminul ideal. Două dormitoare şi un living spaţios sunt alegerea perfectă! Băile, bucătăria, holurile – totul este optimizat şi gândit să vă fie la îndemână, iar terasa/terasele vă asigură nevoia de linişte şi relaxare. Locuinţele se vând în stadiu de proiect. Se predau complet finisate şi dispun de tâmplărie ferestre din PVC cu geam termopan, obiecte sanitare, gresie şi faianţă de calitate, vopsea lavabilă, parchet laminat rezistent la trafic intens, instalaţii electrice, instalaţii termice, instalaţii sanitare, centrală termică pe bloc, contorizare separată a utilităţilor. Preţul final al locuinţei se va stabili în funcţie de modalitatea de plată aleasă. Preţul include TVA 19% si boxa la subsolul blocului. Produsele RoomInnovation NU sunt incluse în preț (pat și perete mobil). Solicitați oferta agentului dumneavoastră.

Vânzător

Maurer Avantgarden 5 S.R.L

Proprietar

Pe site din ian. 2022

Preț: 205.400 EUR

Bacău, Bacău

Recenzii
0 Recenzii de afișat
 
Anunțuri similare
Licitație
Ad Thumbnail
De Vanzare
Apartament 2 camere - Baneasa - Terasa S...
Proprietar

- 17.01.2026

94.500 EUR
Vânzare Directa
Ad Thumbnail
De Inchiriat
Apartament de Lux de inchiriat in Atriun...
Proprietar

Iași - 17.01.2026

450 EUR
Vânzare Directa
Ad Thumbnail
De Vanzare
Vand Vila tip Triplex 4 Camere 2 Bai - D...
Proprietar

Bragadiru - 17.01.2026

75.000 EUR
Vânzare Directa
Ad Thumbnail
De Inchiriat
inchiriez in regim hotelier ultracentral...
Proprietar

- 17.01.2026

25 EUR
//
Promo