Vânzare Directa
Distribuie

Vila stil mediteranean, Bârnova

PRET: 85.000 EUR
Vizualizări 6324
04.12.2025
PRET: 85.000 EUR -04.12.2025
Vizualizări 6324

Chirii și Vânzări Imobiliare

Case de vanzare

4 sau mai multe

Descriere

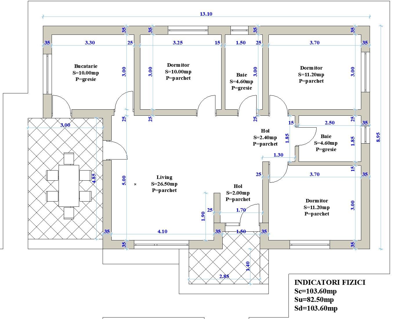
Vila in stil mediteranian cu 4 camere constructie noua 2024 cu predare in luna august al acestui an, cu finisaje la alegere!

Exista mai multe modalitati de plata:
1. plata integrala 85.000E
2. plata in 2 transe de 50% sau avans de 20%, 30% la rosu, 40% la finalizare la 95.000.
3. plata cu avans 15% iar restul la finalizare 105.000E
TVA 9% inclus!

Cu un teren de 450 mp, 2 parcari si o suprafata utila de 82 mp a casei, aceasta este compartimentata astfel:
1 hol (2mp), 1 living 26.5mp, 1 bucatarie decomandata 10mp, 2 Dormitoare (10mp si 11.2mp), 1 hol (2.40 mp), 2 Bai (ambele de 4.6 mp), plus 1 terasa de 14.55mp
- dotari: geamuri termopan de calitate germana, parchet, gresie premium , incalzire in pardoseala la cerere, centrala pe gaz, izolatie exterioara si 2 parcari auto

Vânzător

Voica

SC MARY PMD SRL

Pe site din ian. 2024

Preț: 85.000 EUR

Iași, Bârnova

Recenzii
0 Recenzii de afișat
 
Anunțuri similare
Licitație
Ad Thumbnail
De Vanzare
Apartament 2 camere - Baneasa - Terasa S...
Proprietar

- 17.11.2025

94.500 EUR
Vânzare Directa
Ad Thumbnail
De Inchiriat
Apartament de Lux de inchiriat in Atriun...
Proprietar

Iași - 17.11.2025

450 EUR
Vânzare Directa
Ad Thumbnail
De Vanzare
Vand Vila tip Triplex 4 Camere 2 Bai - D...
Proprietar

Bragadiru - 17.11.2025

75.000 EUR
Vânzare Directa
Ad Thumbnail
De Inchiriat
inchiriez in regim hotelier ultracentral...
Proprietar

- 17.11.2025

25 EUR
Promo